Espresso Single Family

  • 2 Bedrooms
  • 3 Bathrooms
  • 2 Car Garage
  • Starts at 1,999 SQ. FT.
* Elevations may vary based on community

Explore this Floor Plan

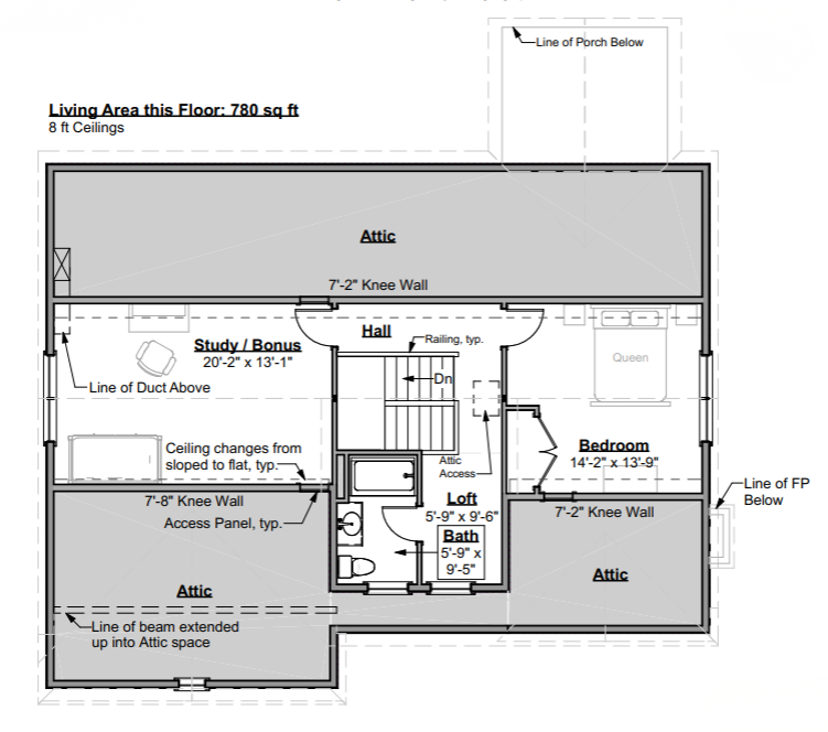
Espresso
First Floor
Second Floor
Basement

Interested in the Espresso?

If you are interested in learning more about buying or building a home with Chinburg, please fill out our contact form here and our sales team will be in touch. We are always available to answer any questions regarding the journey into your new Chinburg home.

Welcome to the family!