Sir Zach w/Sun House Single Family

The Homes at Woodbury ยป
  • 4 Bedrooms
  • 3 Bathrooms
  • 2 Car Garage
  • Starts at 3,002 SQ. FT.
* Elevations may vary based on community

Explore this Floor Plan

Sir Zach w/Sun House
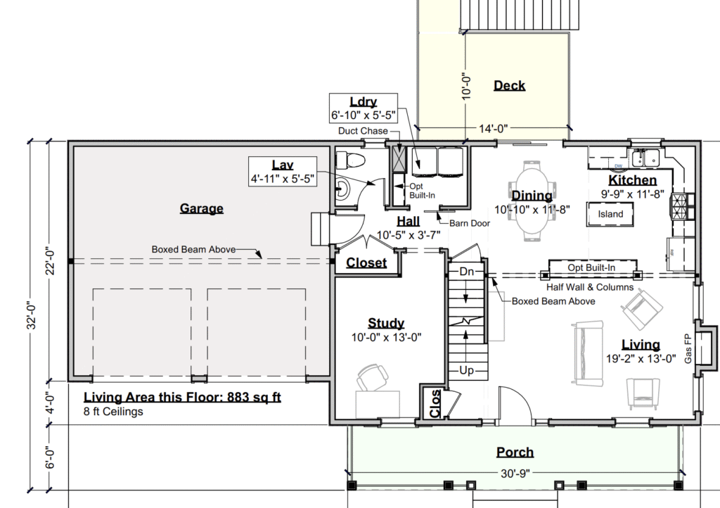
First Floor
Second Floor
Basement

Interested in the Sir Zach w/Sun House?

If you are interested in learning more about buying or building a home with Chinburg, please fill out our contact form here and our sales team will be in touch. We are always available to answer any questions regarding the journey into your new Chinburg home.

Welcome to the family!