Unit 29 | The Darcy Beau

10 Cliffside Drive, Auburn, NH 03032
  • 2 Bedrooms
  • 3 Bathrooms
  • 1 Car Garage
  • Priced from $831,900
* Elevations may vary based on community

Explore this Floor Plan

The Darcy Beau
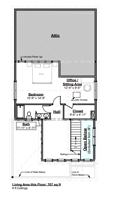
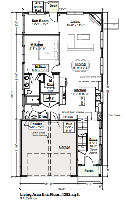
First Floor
Second Floor
Basement

Interested in Unit 29 | The Cliffs at Evergreen?

If you are interested in learning more about buying this home please fill out our contact form here and our sales team will be in touch. We are always available to answer any questions regarding the journey into your new Chinburg home.

Welcome to the family!