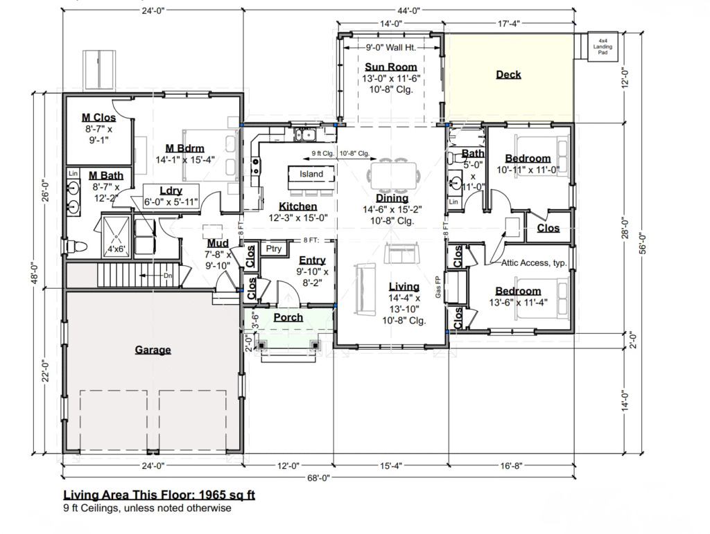
Bonnie Ranch Single Family

  • 3 Bedrooms
  • 2 Bathrooms
  • 2 Car Garage
  • Starts at 1,965 SQ. FT.
* Elevations may vary based on community

Explore this Floor Plan

Bonnie Ranch
First Floor
Basement

Interested in the Bonnie Ranch?

If you are interested in learning more about buying or building a home with Chinburg, please fill out our contact form here and our sales team will be in touch. We are always available to answer any questions regarding the journey into your new Chinburg home.

Welcome to the family!