Carbonara Delux Single Family

Winni Farms ยป
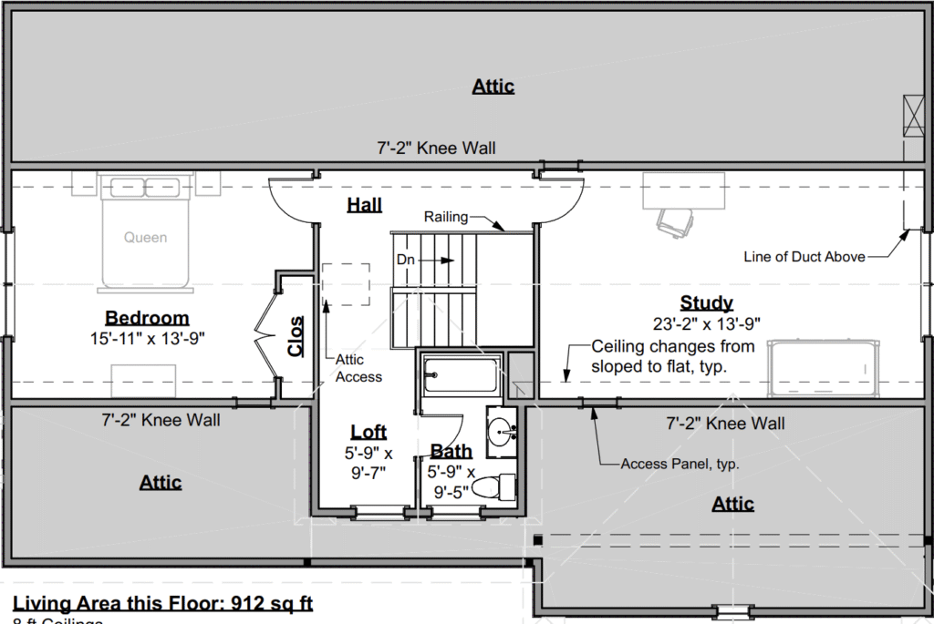
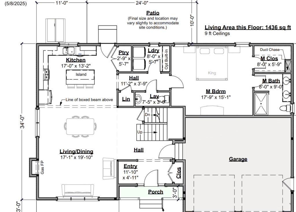
  • 4 Bedrooms
  • 3 Bathrooms
  • 2 Car Garage
  • Starts at 3,190 SQ. FT.
* Elevations may vary based on community

Explore this Floor Plan

Carbonara Delux
First Floor
Second Floor
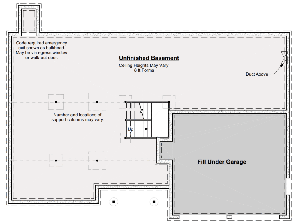
Basement

Interested in the Carbonara Delux?

If you are interested in learning more about buying or building a home with Chinburg, please fill out our contact form here and our sales team will be in touch. We are always available to answer any questions regarding the journey into your new Chinburg home.

Welcome to the family!